Title
您当前的位置: 首页 > > 文章详细
再造一个长安华曦府?电建地产门头沟拿地后0工作日出总平图
发布时间:2025-10-09

  9月30日拿地,十一小长假后出设计方案,电建地产门头沟新盘进度非常快。

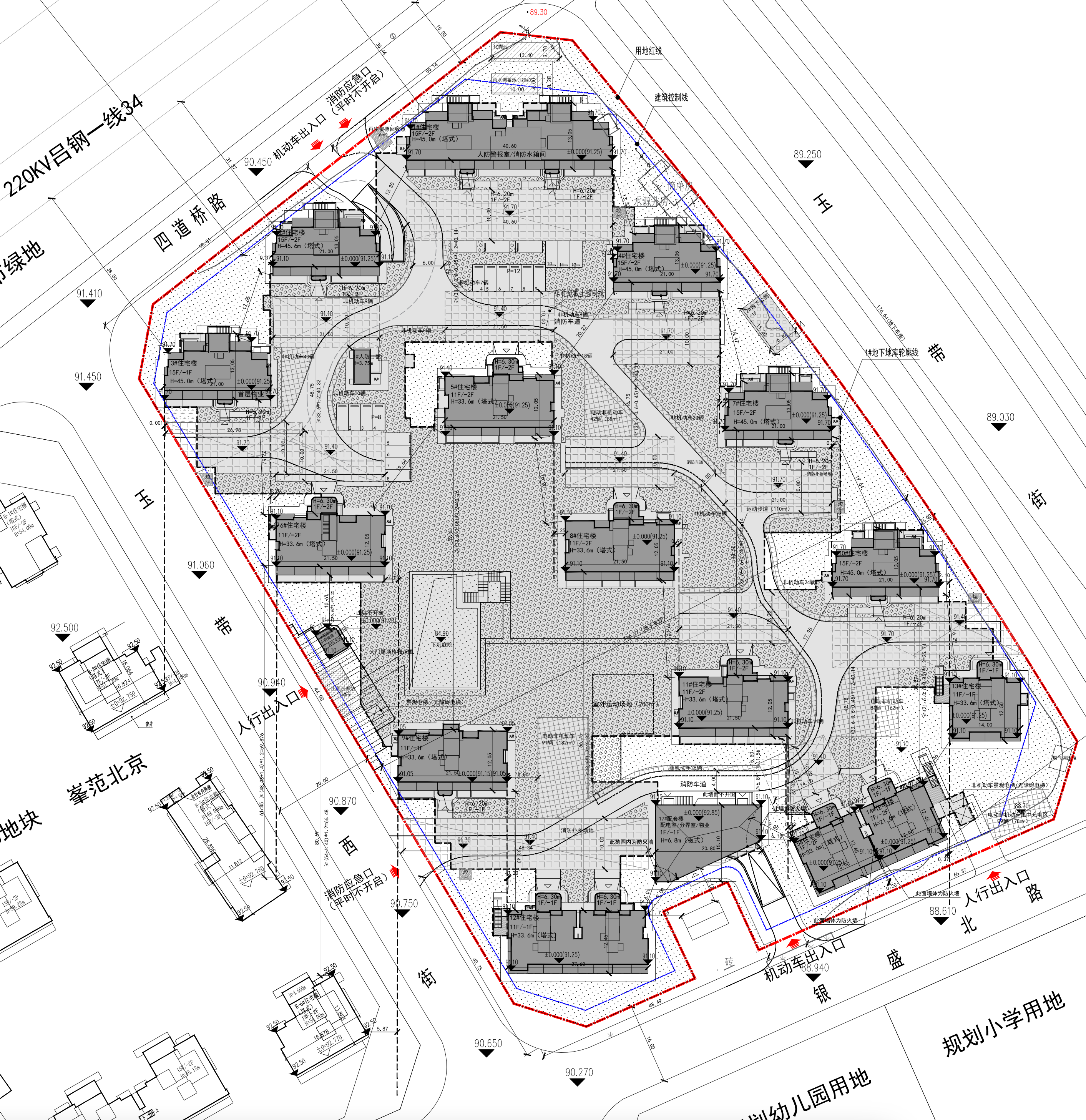
  10月9日,门头沟区S1线区域组团01-12地块土地一级开发项目MC00-0605-0006地块规划设计方案总平面图公示。

  这块地是节前最后一个工作日成交的,由电建地产+门城投以9.57亿元底价摘得,折算楼面价约2.35万元/㎡。

  项目建设用地面积约20364.37㎡,总建筑面积64262.74㎡,其中地上建面40728.74㎡,容积率2.0。

  住宅建面40311.73㎡,规划15栋塔式住宅楼,共421户。

  户均建面95㎡,刚需为主,与长安华曦府定位一致。

  

  7F/11F洋房和15F小高层,南低北高,点状排布。

  6栋15F小高层:北排1#-3#楼,东侧4#、7#、10#楼。

  8栋11F洋房:5#、6#、8#、9#、11#、12#、13#、15#楼。

  1栋7F矮板:14#楼。

  除东南角的13#、14#楼之外,其余楼栋均为正南正北朝阳。

  大门在小区西侧中央位置,门口有一栋小型商服,规划为便利店。

  大门进来是占地约400平米的下沉庭院。

  小区东南侧还有一处人行出入口,方便去南边的小学和幼儿园。

  

  

  

  小区南北两侧各有一处机动车出入口。

  规划机动车停车位477个,其中住宅车位464个,另有居住公服务设施车位7个,配套商业车位7个。

  有20个机动车位在地面,集中在小区南门附近。

  地下车位中有191个电动车位,全部预留充电桩安装条件。

  

  室内扩展方面,目测比长安华曦府的赠送空间更大。

  南北均有内嵌阳台,进深在1.8米左右。

  部分户型北向还有不封闭的设备平台;

  边户房源有侧边飘窗/转角飘窗。

  长安华曦府78平米做了全明三居,这个项目的起步户型在85平左右,预计能做出三居两卫户型。

  

  

  早在拿地前的9月11日,电建地产旗下北京海赋丰业房地产开发有限公司就针对门头沟0006地块发出了全套招标计划。

  项目估算投资约4.54亿元,总建筑面积约6.31万㎡,其中地上面积约4.07万㎡,地下约2.24万㎡。

  

  门头沟0006地块位于永定镇,西六环外,S1线四道桥站距离小区不到200米。

  周边有西长安中骏世界城、龙湖长安天街、门头沟区中医医院、绿海运动公园等配套。

  东侧临近永定河,南侧为规划的小学和幼儿园用地。

  附近次新盘众多,西侧一街之隔为2022年开盘的峯范北京,由电建地产、金地集团、南国置业联合开发,去年底已交房,主力户型61㎡-100㎡。

  此外还有2021年底开盘的龙湖北辰揽境,2022年4月开盘的金茂长安悦,二手房成交均价在5.4万/㎡左右。

  电建地产在门头沟还是颇有底气的,除峯范北京外,0006地块向西不到2公里的长安华曦府项目,有着“三开三罄百日收官”的辉煌战绩。

  该项目于去年12月14日和今年1月1日分两批次取证,总计581套住宅。

  目前网签527套,全盘去化超九成,成交均价4.63万/㎡。

  长安华曦府所在地块于2024年8月29日成交,拿地金额16.4亿元。

  目前该项目的住宅网签总金额约24.5亿元,加上车位、库房等,网签总计26.8亿元,约为地价款的163%。

  

  本次0006地块公示的设计方案中未包含外立面图,该地块在出让文件中对于建筑设计提出了比较多的要求。

  建筑整体色彩以中明度、低饱和度为主避免出现艳丽的颜色。主体色以白色、浅灰色为主,可采用艳度较低的黄、红-黄色相,不宜采用其他色相。

  第五立面建议采用平顶,不得使用穹顶、尖顶:屋顶设计应简洁现代,避免出现中国古建筑屋顶形式;建筑屋顶以高明度米白色系为主,鼓励墙顶统一主体色。

  银盛路以南、迎宾大街以东为地下空间重点建设区,鼓励地下一层作为商业空间,保证各地块之间通道连通,其他地下空间优先满足人防空间建设及地下停车位建设要求四、绿化环境规划要求。

  此外,地块附近涉及头沟区不可移动文物1处,为四道桥龙王庙。施工单位需与门头沟区文物部门对接具体要求,建议项目施工建设过程中要留有安全距离,且规划内容中的周边建筑风貌要与文物本体相协调。

上一篇:
轨道集团、铁路集团被吸收合并!
下一篇:
国家新规精准暴击短续航插混,十万级长续航选谁好呢?
Title