Title
您当前的位置: 首页 > 百强企业动态 > 文章详细
北京城建,别墅打骨折了
发布时间:2025-11-24

  新官上任三把火。齐占峰上位城建发展新董事长后,左手猛拿地,右手去库存。

  10月,北京别墅销冠,出自 北京城建 在顺义的一个老盘——北京合院。

  上个月,它别墅高层网签了30套,整盘网签金额超1.65亿元。其中,别墅网签了14套,成交均价28,684元/㎡,网签金额超1.1亿元。

  今年以来,北京合院单月网签基本都在个位数,甚至有些月份还“挂0”。

  不仅 北京城建 换了掌门人,北京合院项目公司的高层也大换血。

  原法人兼董事长的董慧文退出,总经理宁志斌接过了交接棒,韩韬“补位”为经理。

  宁志斌或许深谙,想要库存去的快,降价是杀手锏。北京合院,也没能逃出降价的命运。

  1-7月,它别墅的成交均价还很坚挺,维持在3万/㎡;

  8月,它跌到2字头,网签了1套307.16㎡别墅,成交均价27,891元/㎡,创历史新低;

  9月,甚至出现了网签“挂0 ”。

  其实,早在去年底,北京合院就采取一系列的动作,升级了一个新的建面约330平的精装样板间。此外,它还对营销中心做了焕新升级。

  但对于购房者而言,这些所谓的“面子”工程,都没有降价来得实在。

  北京合院自2017年开卖,2018-2020年,它别墅的成交均价基本都在4万元/㎡以上,最高甚至卖到了45,711元/㎡。

  没想到短短5年时间过去, 北京城建 却要打骨折卖别墅。

  01

  北京合院分南、北区,户型包括了205㎡联排别墅、288㎡合院别墅、326㎡合院别墅。

  一位已购业主称,“南区北区各有不同,差别只是在小院围墙和大门上,一个院墙和大门差价在70万左右,当时销售是这样说的。但是现在南区自己家也都把院墙建起来了。”

  此外,房产中介表示,南北区楼间距也有差别,“同样是220平,北区的楼间距是3米,南区1.5米,北区的采光相对会更好。”

  北京合院的楼间距,成为不少购房者心里的“刺”。

  一位去项目考察过,最终放弃购买北京合院的购房者表示,“之所以叫合院,是因为四家的花园像田字格在一起,你在楼上能看到其他三家的花园。楼间距等于没有,俩自行车不能并排。”

  此外,毛坯交付和物业费也劝退了一部分购房者。

  “要装下来最起码一百万起步,不要想着简单装能住就行,别墅能住就得一百万,全屋防水得做吧,屋顶除雪得做吧,地下室密封采光得做吧,这都是功能性的,一个都少不了。”一位购房者粗算了下装修成本。

  早前,住在北京合院的一位大爷向这位看房人吐槽,“下雨把花园淹了,地下室渗水,房顶排水堵了,雨进了屋子,还没有抽水机,物业拿着盆一盆盆窑出去的。修复就得十几万。”

  北京合院物业费有两个档,高层3.98元/月,合院6.98元/月。

  一位购房者则忌讳这种物业费相差巨大的小区,“实际上绿化和景观都在高层那边,合院享受不到什么小区内景观,但收的高也没脾气,谁叫你合院呢。”

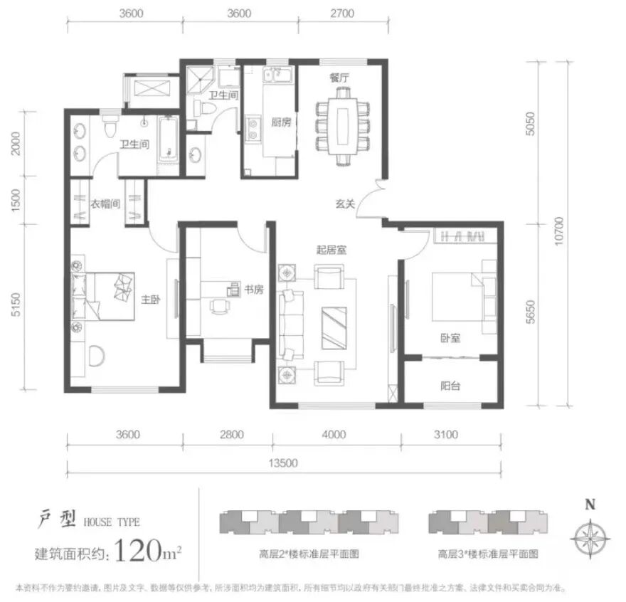
  除了别墅类产品,该项目也有120㎡、130㎡的高层产品。

  但无论是在小区配套还是在偷面积上,甚至是在户型设计、墙窗比等方方面面,北京合院都远远不如当下的“好房子”。

  120㎡户型是三室两厅两卫,虽然做到了四面宽,但客厅面宽仅4m。而且,客厅还不是整面落地窗。

  厨房目测不到1.8米宽,扣除操作台的面积,根本容纳不了多人同时在厨房。此外,玄关进来的过道空间,也浪费了不少。

  02

  北京合院的项目公司为 北京城建 兴顺房地产,成立于2015年,注册资本为3亿元。

  城建兴顺名下的项目可不单单只有北京合院,还有仁悦居、星誉BEIJING等。10年间,它从棚户区改造、到土地一级开发、产业项目、商业项目,到住宅开发项目。

  7月,城建兴顺因为区区83.76万元,被法院列为被执行人。

  更早之前,它还收到了两张罚单。

  事件起因为2023年10月27日,有业主反映,顺义区临河悦园小区5号院3号楼xx室主卧卫生间反味,推拉门有洞等问题已有半年之久,向开发商报修至今未维修。城建兴顺为该工程的建设单位。

  相关部门查实,该单位确实有未在建设工程质量保修期限内对所有权人履行质量保修义务的行为,直接负责的主管人员是宁志斌。而后,北市顺义住建委给城建兴顺开出20万元罚款的行政处罚。

  2023年11月4日,又有顺义区临河悦园小区5号院10号楼业主投诉,客厅阳台返潮未维修,楼前挖沟水排不出去。北京顺义住建委又给城建兴顺开了一张行政罚单,处20万元罚款。

  不止如此,城建兴顺还曾被购房者告上法庭。

  事件起因为,2017年6月18日,贾某、张某以每平方米25530.57元,总价款1782800元,购买城建兴顺在顺义仁悦居的房子。

  该项目为原限价商品住房项目,政府为加大北京市自住型商品住房市场供应力度,将仁悦居(6001地块)项目375套剩余房源(以下简称“本项目”)转化为自住型商品住房。

  2021年1月31日,开发商未在合同约定的730日内,办理不动产转移登记。于是,贾某、张某将开发商告上法庭。

  法院认为,涉案房屋实际于2022年7月13日转移登记至贾某、张某名下,晚于合同约定时间,故出卖人逾期办理转移登记的违约行为存在。最终,法院判决城建兴顺支付业主违约金14022.85元。

  城建发展新董事长齐占峰,也是 北京城建 集团的财务负责人。财务出身的他,也必然会狠抓城建发展的财务。

  这家北京老牌国资房企,去年营收规模虽然站上近年最高点,归母净利润却创下新低。

  2024年度报告显示,城建发展实现营收约254.42亿元,同比增长24.94%;归母净利亏损约-9.51亿元,同比下降270.17%,由盈转亏。

  报告期内,城建发展经营现金流净额同比下降57.5%,至55.75亿元。

  另据年报披露,去年城建发展的房地产开发、租赁和物业管理业务,毛利率同比分别下降4.19%、0.49%、28.06%,其中,房地产开发的毛利率为14.1%。

  齐占峰肩上的压力很大,他必须把拿地去化和扭亏为盈一起两手抓。

上一篇:
中一签需缴款5.7万元!“国产GPU第一股”摩尔线程今日开启申购
下一篇:
绿色矿产如何发展?需契合全球南方“发展与环境并重”的现实需求
Title